Office Building Floor Layout Plan DWG Download for Architects
Description
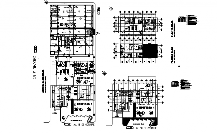
Explore a comprehensive DWG file of an office building floor layout, featuring precise details of each floor, room arrangements, corridors, and common areas. This plan is designed for architects, designers, and engineers looking for accurate, ready-to-use CAD drawings to streamline their project planning and execution. The file includes detailed dimensions, structural elements, and layout clarity, making it ideal for both commercial and institutional building designs. Enhance your design workflow with this professional-grade floor layout plan, ensuring efficiency, accuracy, and easy integration into AutoCAD projects.
Uploaded by:
Eiz
Luna

