Complete Restaurant Layout Floor Plan Design Available in DWG Format
Description
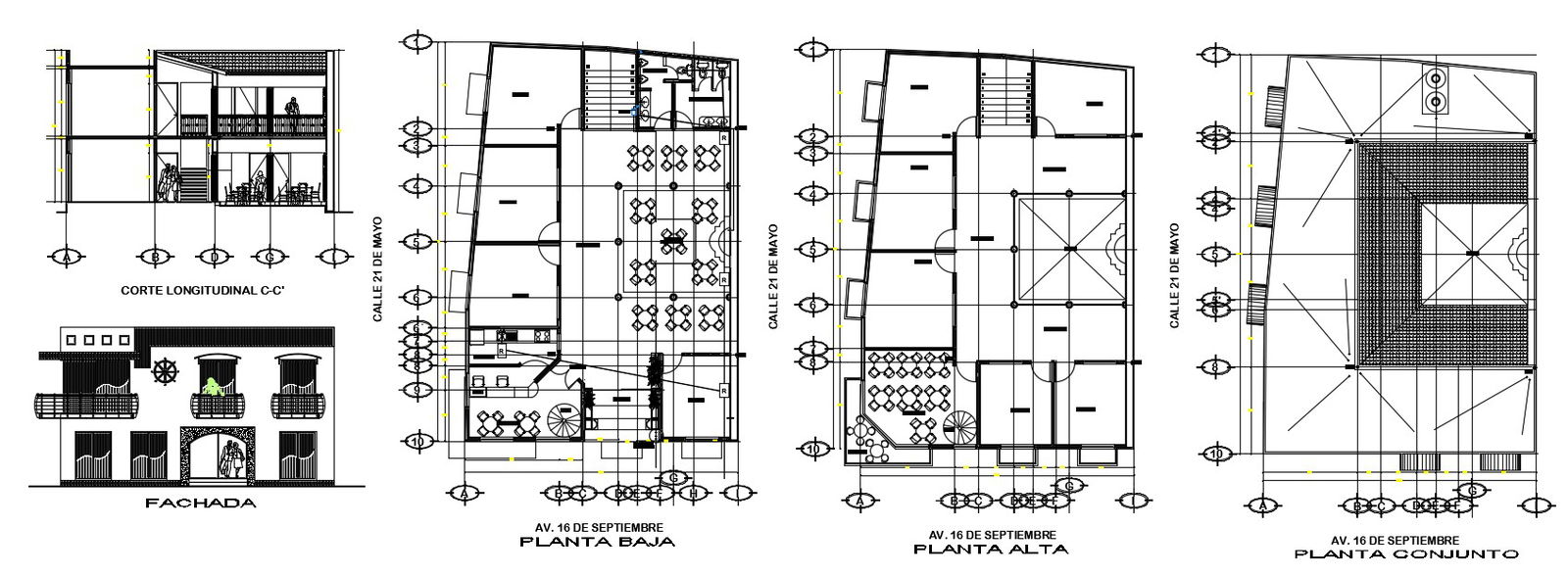
Floor plan design of restaurant which shows restaurant elevation and sectional design along with terrace plan details, each floor layout plan details, dimension hidden line details, restaurant facilities dining area, and kitchen area details, and many other unit details.
Uploaded by:
Priyanka
Patel
