Electrical layout plan details of all floor of residential house dwg file
Description
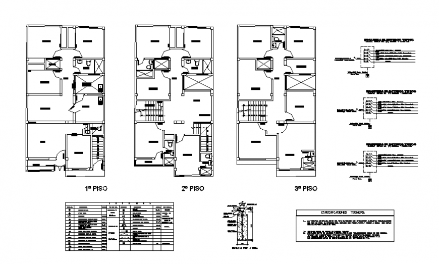
Electrical layout plan details of all floor of residential house that includes a detailed view of main entry house door, drawing room, living room, family hall, kitchen, dining area, indoor staircases, laundry area, balcony, bedroom, master bedroom, toilets and bathroom with power layout details, lighting layout details, computation and schedule of loads, general notes and specifications, panel board details, riser diagram, convienence details, legends and electric equipment details, cable details, dimensions details and much more of electrical installation details.
Uploaded by:
Eiz
Luna

