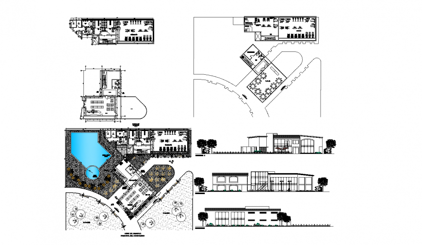
Commercial complex layout detail drawing in dwg AutoCAD file.
Description
Commercial complex layout detail drawing in dwg AutoCAD file. This file includes the detail furniture layout with restaurant, gym, and toilet block. Landscape detail layout plan with garden and swimming pool. External elevation detail drawing, front elevation, and sectional elevation.

Uploaded by:
Eiz
Luna

