Commercial Building Plans and Designs Layout in AutoCAD DWG File

Commercial Building Plans and Designs Layout in AutoCAD DWG File
Profile

Uploaded by:

Priyanka

Patel

Description
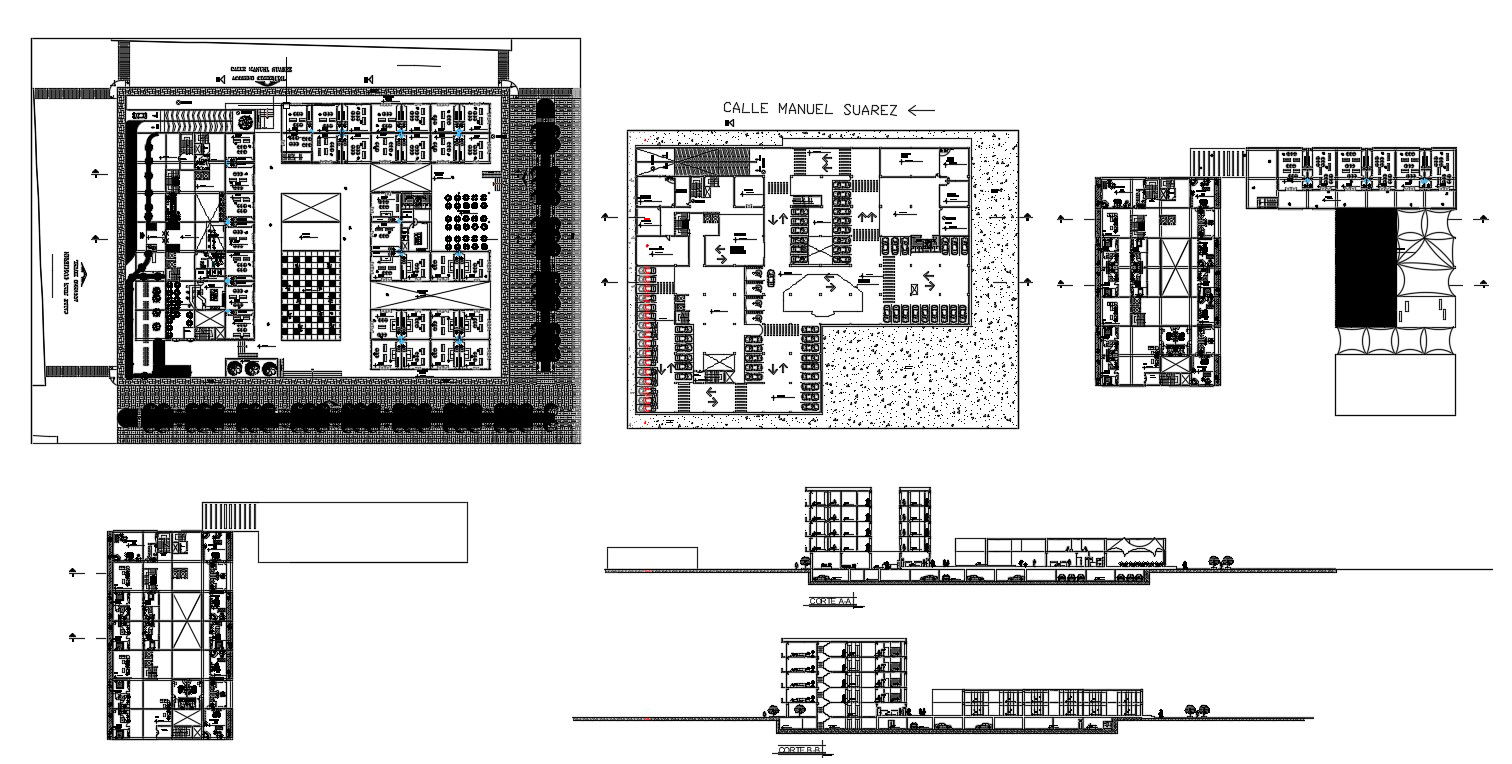
Commercial building design plan which shows basement parking space details along with building different elevation and sectional details.
Profile

Uploaded by:

Priyanka

Patel

find Latest

Related Files

WhatsApp Chat