Ceiling house planning AutoCAD file
Description
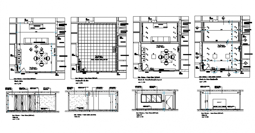
Ceiling house planning auocad file, section line detail, dimension detail, naming detail, front elevation detail, left side elevation detail, right side elevation detail, back elevation detail, furniture detail in door, window, table and chair detail, flooring tiles detail, etc.
Uploaded by:
Eiz
Luna
