Football Sport ground detail 2d view layout plan in autocad format
Description
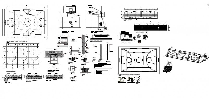
Football Sport ground detail 2d view layout plan in autocad format, plan view detail, rectangular shape ground, ground markings detail, dimension detail, isometric view detail, specification detail, football net detail, pole detail, top elevation detail, etc.

Uploaded by:
Eiz
Luna

