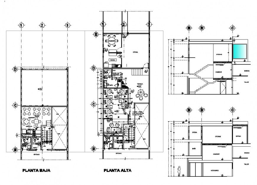
Office building structural detail 2d view CAD construction block plan and section autocad file
Description
Office building structural detail 2d view CAD construction block plan and section autocad file, plan view detail, wall and flooring detail, floor level detail, RCC structure, door and window detail, hidden line detail, numberings detail, sanitary toilet detail, furniture detail, section detail, leveling detail, etc.
File Type:
DWG
File Size:
412 KB
Category::
Interior Design
Sub Category::
Modern Office Interior Design
type:
Gold

Uploaded by:
Eiz
Luna

