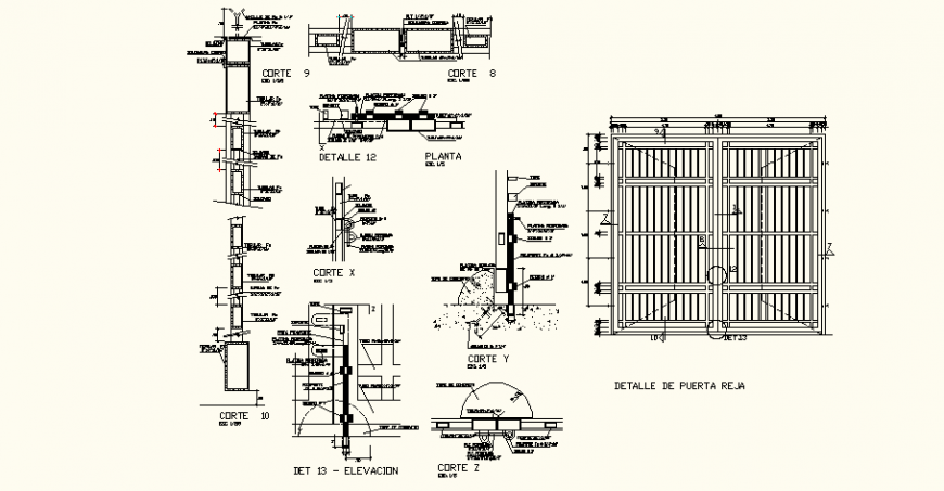
Grill gate detail drawing in dwg AutoCAD file.
Description
Grill gate detail drawing in dwg AutoCAD file. This drawing includes the detail top view plan, front elevation, side sectional elevation, joinery sectional detail, hinges detail, and double grill gate detail plan with detail description and dimensions.
File Type:
DWG
File Size:
85 KB
Category::
Dwg Cad Blocks
Sub Category::
Windows And Doors Dwg Blocks
type:
Gold

Uploaded by:
Eiz
Luna
