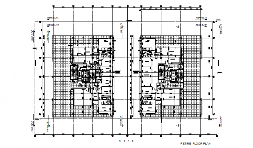
Pent house floor plan detail autocad file
Description
Pent house floor plan detail autocad file, centre line plan detail, dimension detail, naming detail, section line detail, brick wall detail, flooring tiles detail, column detail, stair detail, furniture detail in door and window detail, toilet detail in door and window detail, etc.
Uploaded by:
Eiz
Luna

