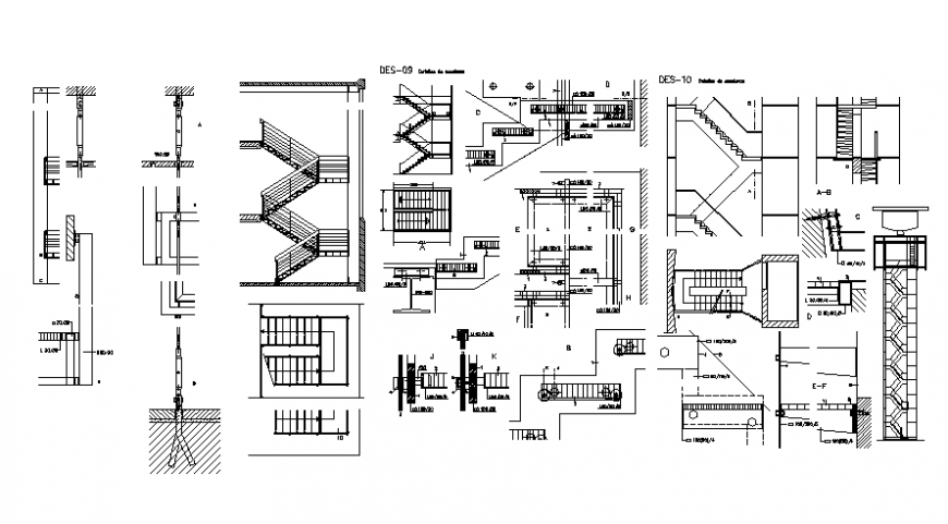
High rise building stair plan and section autocad file
Description
High rise building stair plan and section autocad file, dimension detail, naming detail, riser and trade detail, arrow detail, handrail detail, lending detail, hatching detail, not to scale detail, line plan detail, cement mortar detail, etc.
Uploaded by:
Eiz
Luna

