Heavy excavator construction vehicle block cad drawing details dwg file
Description
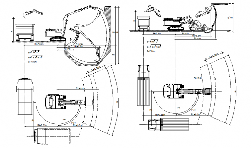
Heavy excavator construction vehicle block cad drawing details that includes a detailed view of excavator block sets with design details, colors details, dimensions details, size details, type details etc for multi purpose uses for cad projects.

Uploaded by:
Eiz
Luna

