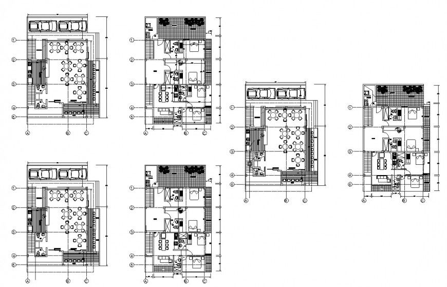
Hotel building structure 2d view CAD structural block layout file in autocad format
Description
Hotel building structure 2d view CAD structural block layout file in autocad format, plan view detail, wall and flooring detail, parking space detail, lawn detail, hidden line detail, dimension detail, numbering detail, dining area detail, bedrooms detail, sanitary toilet and bathroom detail, floor level detail, door and window detail, RCC structure, etc.

Uploaded by:
Eiz
Luna

