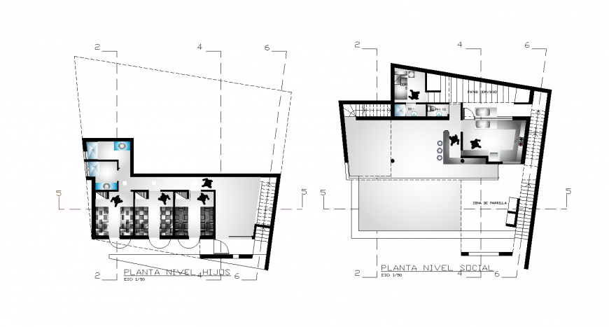
Small hotel top view plan detail in dwg AutoCAD file.
Description
Small hotel top view plan detail in dwg AutoCAD file. This file includes the top view layout plan of the hotel with first floor and second floor with stairs detail, kitchen detail, bar table detail, and toilet block detail.

Uploaded by:
Eiz
Luna

