House floor plan detail and sectional detail dwg file in autocad format
Description
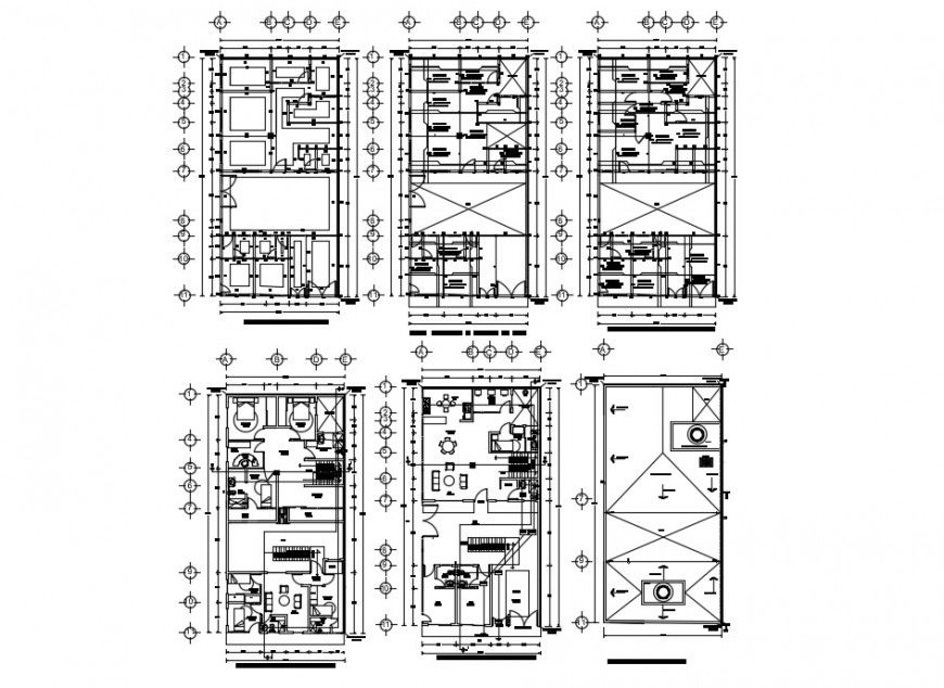
House floor plan detail and sectional detail dwg file in AutoCAD format. with cut out detail, dimension detail, door detail with kitchen, sitting hall, dining hall, bedrooms, toilets, wash area, store room, pooja room, etc.

Uploaded by:
Eiz
Luna

