Two double bed bedrooms top view plan details dwg file
Description
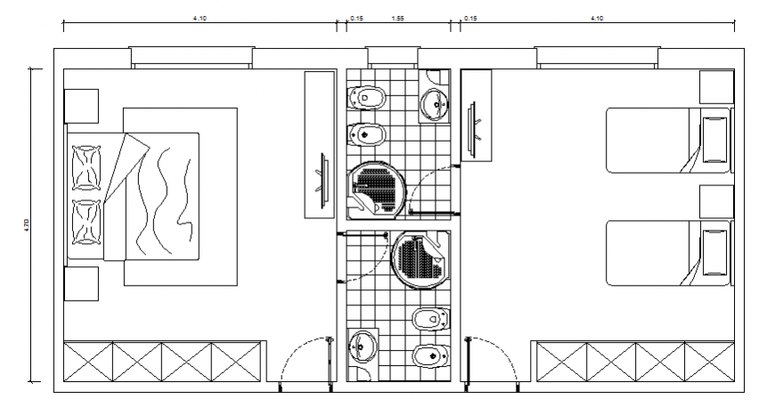
Two double bed bedrooms top view plan details that includes a detailed view of toilet and bathroom view, doors and window view, doubel bed view, two single bed view, furniture layout details, floor design, wall design and much more of bedroom details.
File Type:
DWG
File Size:
148 KB
Category::
Interior Design
Sub Category::
Bathroom Interior Design
type:
Gold

Uploaded by:
Eiz
Luna
