Double bed bedroom with attached office top view layout plan dwg file
Description
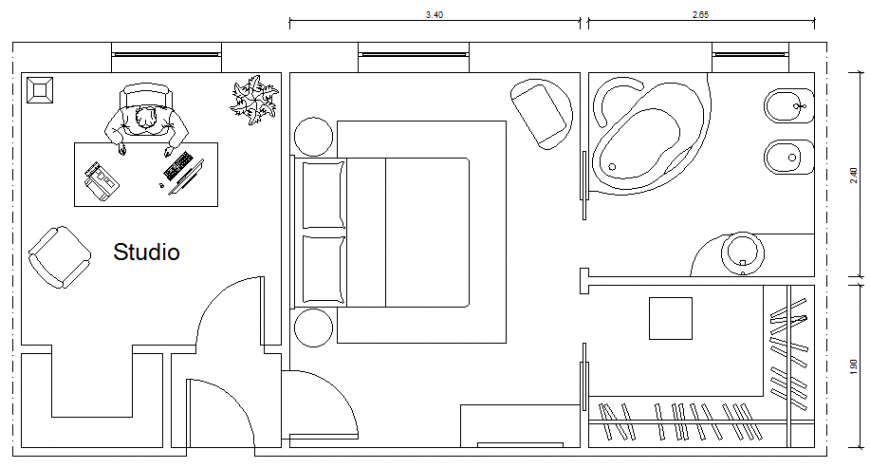
Double bed bedroom with attached office top view layout plan that includes a detailed view of toilet and bathroom view, doors and window view, doubel bed view, two single bed view, furniture layout details, floor design, wall design and much more of bedroom details.
File Type:
DWG
File Size:
89 KB
Category::
Interior Design
Sub Category::
Bathroom Interior Design
type:
Gold

Uploaded by:
Eiz
Luna
