Section, elevation and plan detail of residential house 2d view CAD structural block autocad file
Description
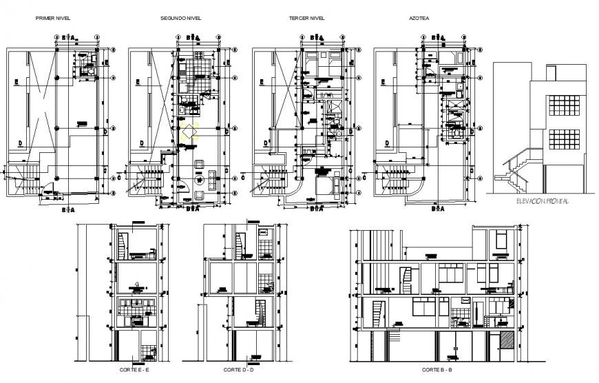
Section, elevation and plan detail of residential house 2d view CAD structural block autocad file, wall and flooring detail, door and window detail, three floor level, furniture detail, section line detail, plan view detail, front elevation detail, sanitary toilet and bathroom detail, staircase detail, front elevation detail, section detail, etc.

Uploaded by:
Eiz
Luna

