Showroom detail foundation layout plan in dwg AutoCAD file.
Description
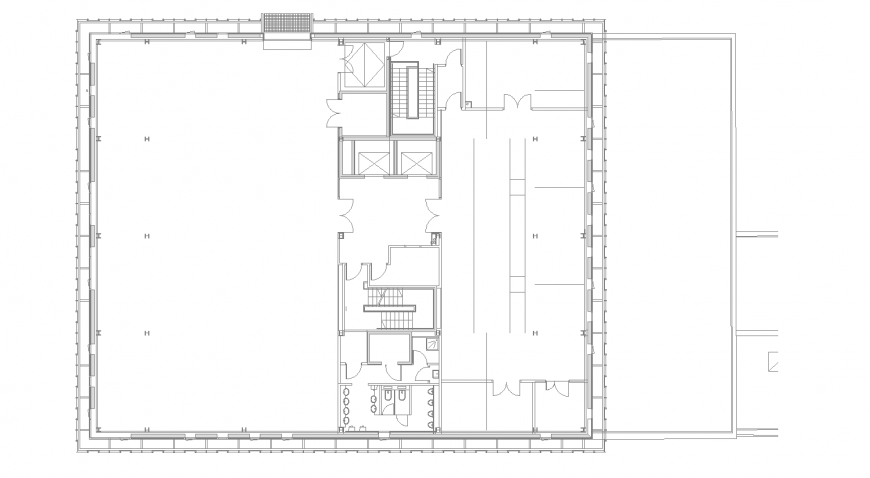
Showroom detail foundation layout plan in dwg AutoCAD file. This file includes the detail foundation layout plan with wall detail, column detail, lift detail, stairs detail, and toilet block detail.
File Type:
DWG
File Size:
495 KB
Category::
Interior Design
Sub Category::
Showroom & Shop Interior
type:
Gold

Uploaded by:
Eiz
Luna

