Two-level school building elevation and section cad drawing details dwg file
Description
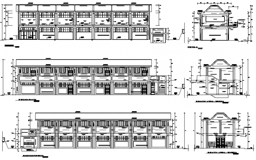
Two-level school building elevation and section cad drawing details that includes a detailed view of flooring view, doors and windows view, staircase view, balcony view, wall design, dimensions, roof or terrace view with main entry gate, parking area for students and staff, classrooms, stream departments, library, laboratory, staff room, cultural hall, sanitary for staff, sanitary for students, canteen/cafeteria, sports ground, meeting room, cleaning department, admission office, clerk room, principal or head office and much more of school project.

Uploaded by:
Eiz
Luna

