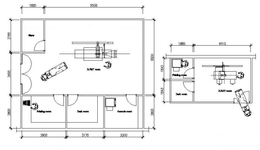
Medical hospital x-ray room layout plan details dwg file
Description
Medical hospital x-ray room layout plan details that includes a detailed view of reception area, furniture layout details, dimensions details, patient beds, chairs view, passage, area details, medical equipment, and much more of medical hospital ward room details.

Uploaded by:
Eiz
Luna

