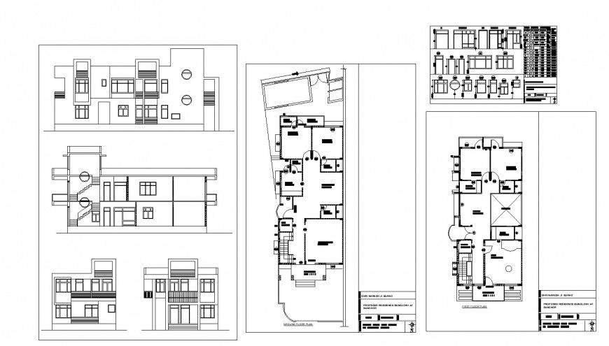
Proposed residential bungalow detail drawing in dwg AutoCAD file.
Description
Proposed residential bungalow detail drawing in dwg AutoCAD file. This file includes the front elevation of the bungalow, side elevation, back elevation, and detail layout plan of the bungalow with dimensions.

Uploaded by:
Eiz
Luna

