Modern Staircase Design AutoCAD drawing

Modern Staircase Design AutoCAD drawing
Profile

Uploaded by:

Priyanka

Patel

Description
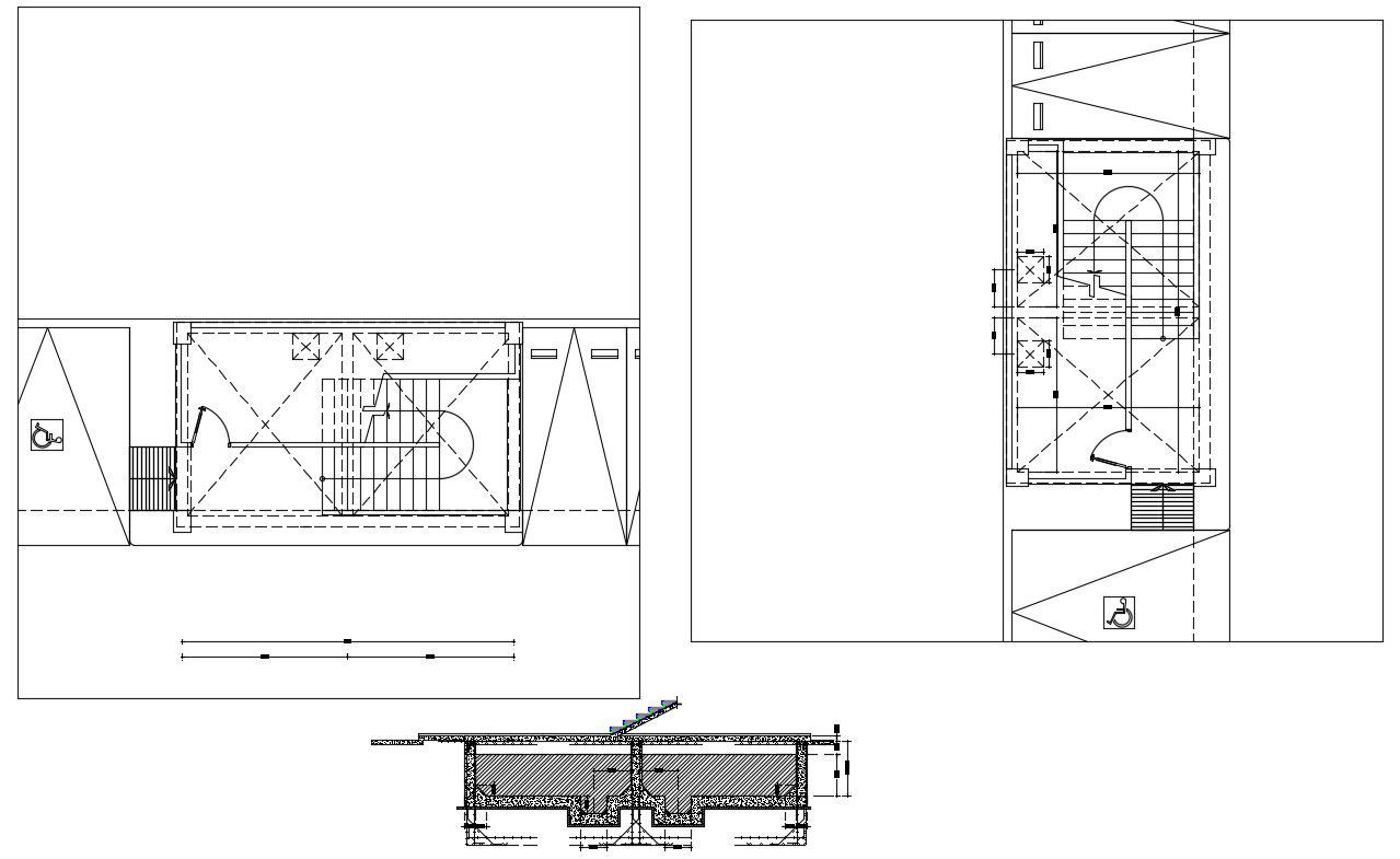
Download staircase design which shows stair plan details along with stair footing design details, staircase plan details, and other RCC structural details.
Profile

Uploaded by:

Priyanka

Patel

find Latest

Related Files