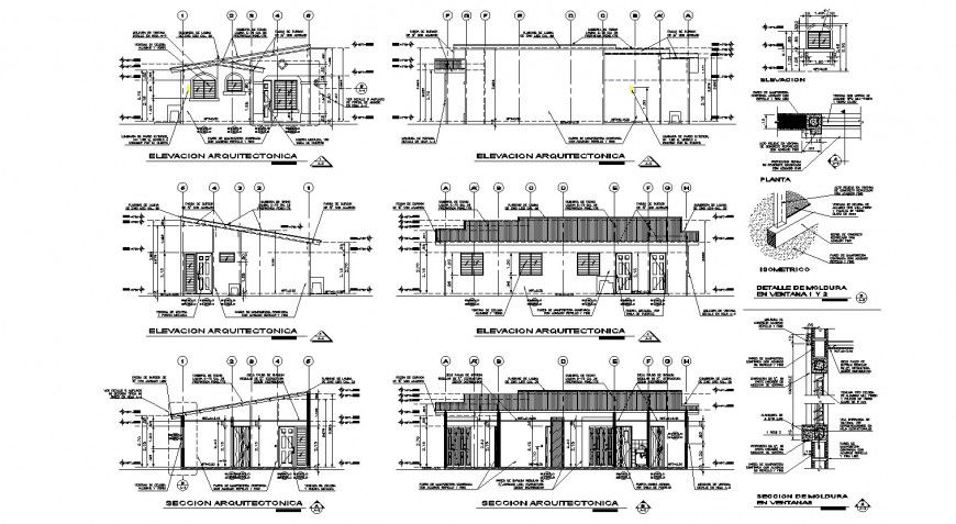
Western house elevation detail drawing in dwg AutoCAD file.
Description
Western house elevation detail drawing in dwg AutoCAD file. This file includes the detail sectional elevation of all sides of the house, roof detail, slab detail, flooring detail, roof detail, reinforcement detail, and beam detail drawing with descriptions and dimensions.

Uploaded by:
Eiz
Luna

