Electrical layout plan of the sports club in dwg AutoCAD file.
Description
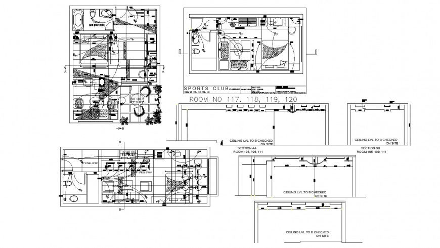
Electrical layout plan of the sports club in dwg AutoCAD file. This file includes the detail electrical layout plan of the sports club with bracket light indication, wiring detail, and switchboard detail. Sectional elevation of the club with ceiling detail with light fitting fixtures with dimensions.

Uploaded by:
Eiz
Luna

