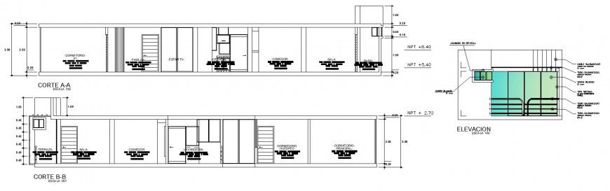
1 bhk or dormitory building section drawing in dwg file.
Description
1 bhk or dormitory building section drawing in dwg file. detail section drawing a-a’ , section b-b’ through the building , different levels details, balcony elevation detail drawing.

Uploaded by:
Eiz
Luna

