Propose building apartment drawing in dwg AutoCAD file.
Description
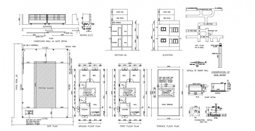
Propose building apartment drawing in dwg AutoCAD file. This file includes the detail top view plan of the ground floor, first floor and terrace floor plan with detail dimensions. Exterior front elevation, sectional elevation, dwarf wall detail, conservation of rain water detail, sump detail, foundation detail and compound wall and gate detail drawing with dimensions.

Uploaded by:
Eiz
Luna

