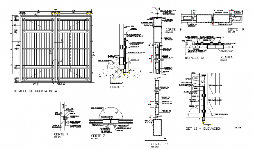
Double door gate elevation and section detail dwg file
Description
Double door gate elevation and section detail dwg file, dimension detail, naming detail, reinforcement detail, bolt nut detail, hidden line detail, section X-X’ detail, section Y-Y’ detail, thickness detail, concrete mortar detail, section line detail, etc.
File Type:
DWG
File Size:
85 KB
Category::
Dwg Cad Blocks
Sub Category::
Windows And Doors Dwg Blocks
type:
Gold
Uploaded by:
Eiz
Luna
