Multi-level shopping mall building elevation, section and floor plan details dwg file
Description
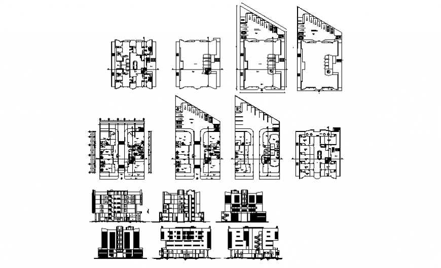
Multi-level shopping mall building elevation, section and floor plan details that includes a detailed view of facade back and side elevations and section details with flooring view, doors and windows view, staircase sectional details, balcony view, wall sections and dimensions details, car parking floor, tree view, wall design with ground floor, second floor etc with main entry gate, security check, corporate offices, departmental stores, branded stores, parking floor, loading and transportation trucks parking area, shops and showrooms, elevators, food stores, hotels and restaurants, salon and tattoo shops, party lounge, theater, retail markets, kids game zone, chocolate room, multipurpose stores, crockery stores, beauty stores, sanitary facilities of all floors of male and female, lift details, spa centers, horror house and much more of shopping mall floor details.

Uploaded by:
Eiz
Luna

