Hollow pit elevator section and installation details dwg file
Description
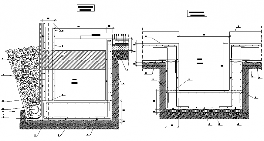
Hollow pit elevator section and installation details that includes a detailed view of Compact base, Concrete cleaning, Armature support wedges ³ 5 cm, Concrete of rough surface concrete, Expansion joint: porexpan, Thermal insulation (3cm), Solera, Mallazo solera, Wait for wall, Armed wall, Arranged running shoes, Corrida shoes interrupted by pit lift, Waterproof sheet, Geotextile, Base mortar (3cm) for paving, Steam barrier and much more of elevator details.
File Type:
DWG
File Size:
76 KB
Category::
Mechanical and Machinery
Sub Category::
Elevator Details
type:
Gold

Uploaded by:
Eiz
Luna

