Health care type salon with boutique floor plan details dwg file
Description
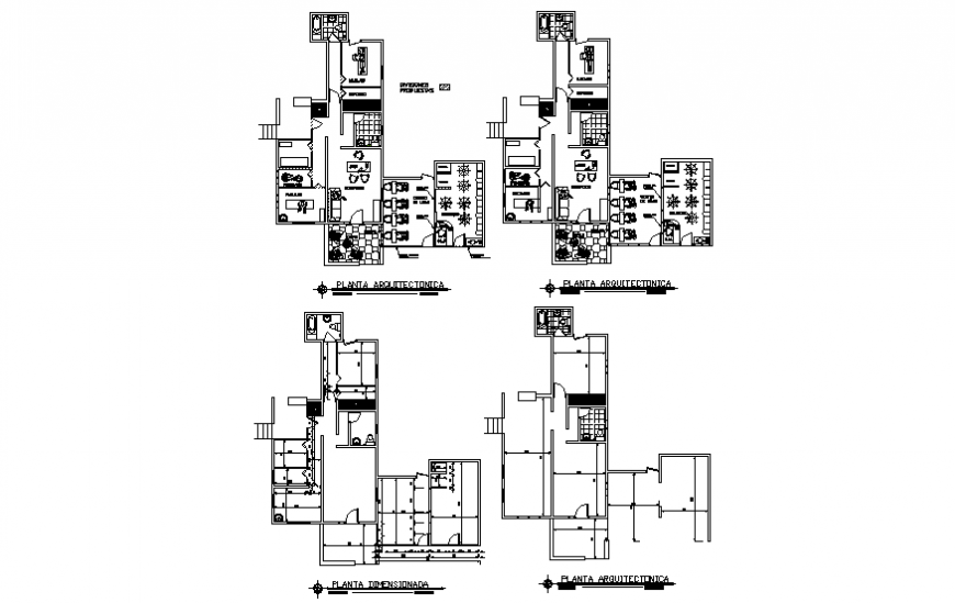
Health care type salon with boutique floor plan details that includes a detaied view of dimensions details, main entry door, reception area, waiting area, salon area, pedicure area, facial area, dressing room, massage room, toilet and bathroom and much more of store details.

Uploaded by:
Eiz
Luna

