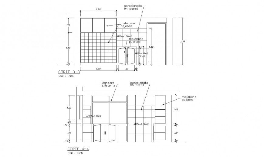
Kitchen elevation detail drawing in dwg AutoCAD file.
Description
Kitchen elevation detail drawing in dwg AutoCAD file. This file includes the detail wall elevation of the kitchen cabinet, sectional elevation with overhead storage and kitchen tall storage cabinet, and with detail dimensions.

Uploaded by:
Eiz
Luna
