Resort and hotel floor plan dwg file in Autocad format
Description
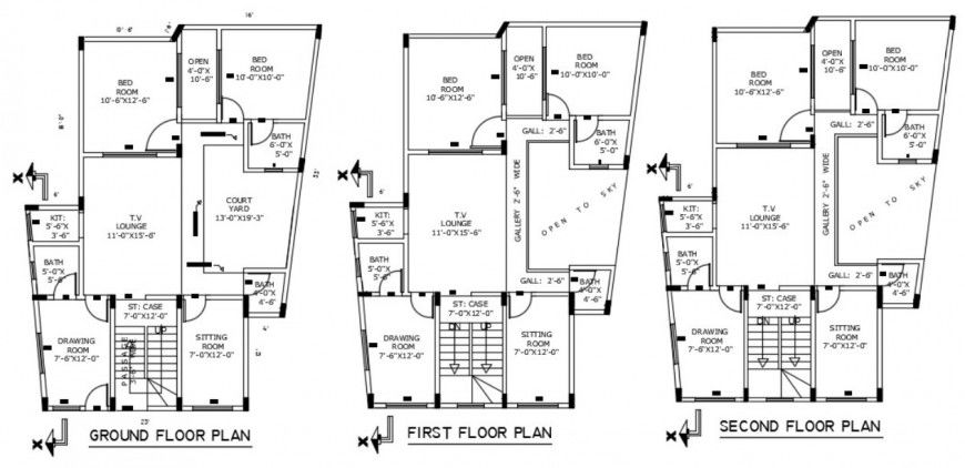
Resort and hotel floor plan dwg file in Autocad format. The architecture layout plan includes the ground floor detail, first-floor detail, second-floor detail, kitchen, sitting hall, dining hall, bedrooms, toilets, garden detail, wash area, store room, etc in AutoCAD format.

Uploaded by:
Eiz
Luna

