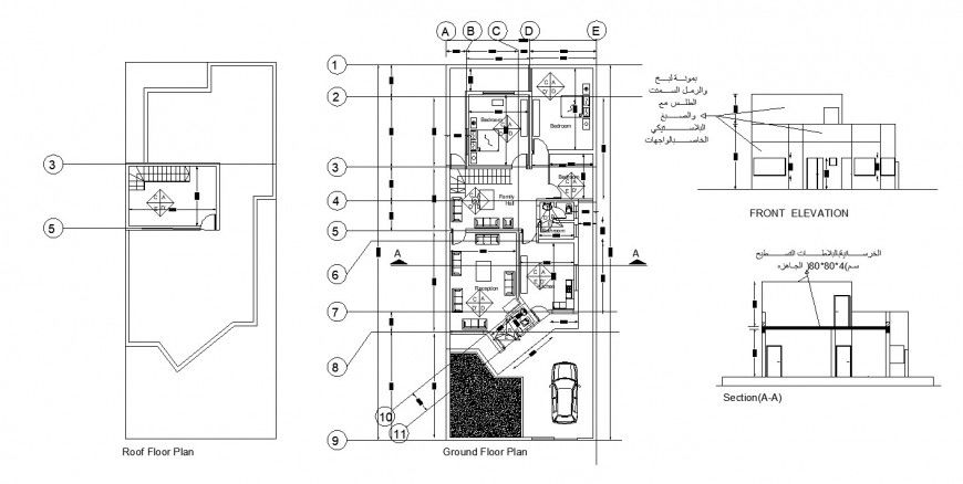
Bungalow ground floor and roof floor plan in dwg file.
Description
Bungalow ground floor and roof floor plan in dwg file. ground floor plan with furniture details, parking area, center line drawing with dimensions, roof plan with cabin details, front elevation and section a-a details.

Uploaded by:
Eiz
Luna

