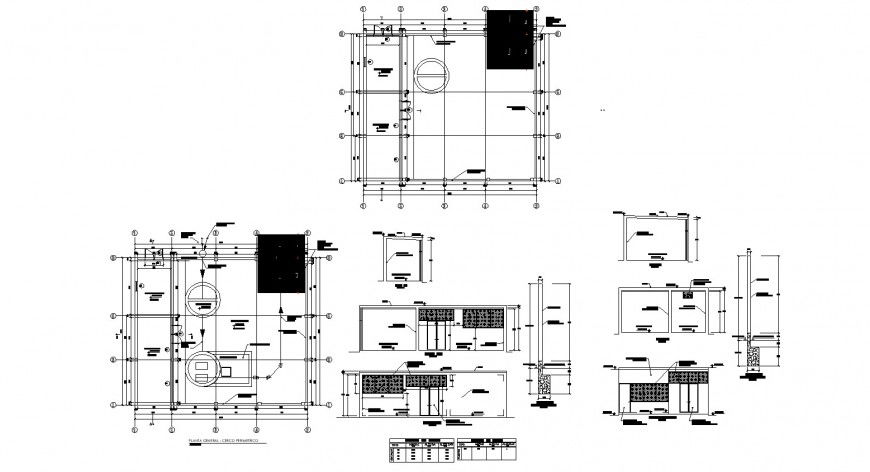
Terrace layout plan of water tank in dwg AutoCAD file.
Description
Terrace layout plan of water tank in dwg AutoCAD file. This fie includes the detail top view layout plan of the terrace with overhead water storage tank, plumbing line drawing, detail elevation, sectional elevation, wall construction detail drawing and with detail dimensions.
File Type:
DWG
File Size:
337 KB
Category::
Construction
Sub Category::
Construction Detail Drawings
type:
Gold

Uploaded by:
Eiz
Luna

