Single family house plan details with car pantry cad drawing details dwg file
Description
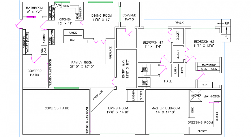
Single family house plan details with car pantry cad drawing details that includes a detailed view of main entry house door, drawing room, living room, family hall, kitchen, dining area, indoor staircases, laundry area, balcony, bedroom, master bedroom, toilets and bathroom, indoor doors, furniture details and much more of house plan.

Uploaded by:
Eiz
Luna

