Multiple Commercial Layouts with Furniture in AutoCAD DWG File
Description
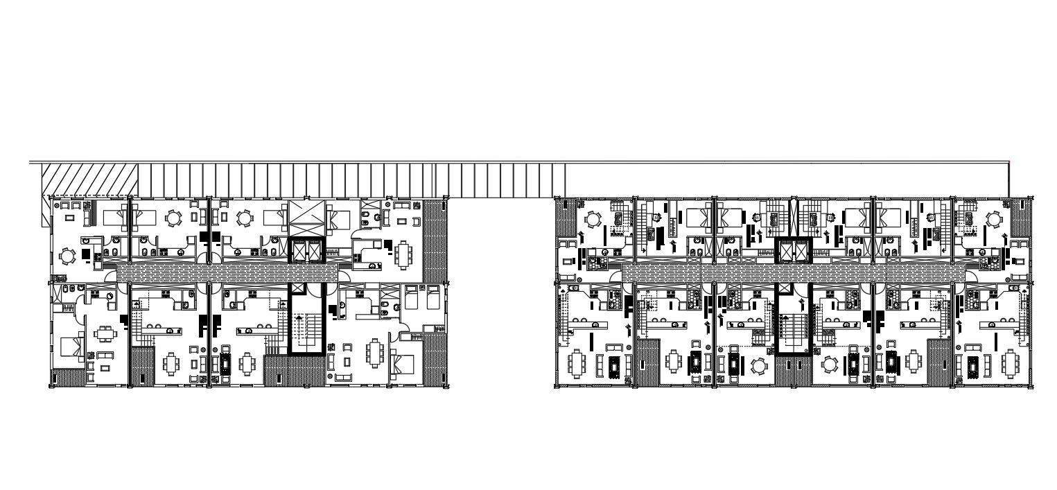
Multiple commercial Lay-out plan d furniture download file, Architecture apartment floor plan design DWG file. This Building commercial lay-out draw in Autocad format. Multiple commercial Lay-out Design.
Uploaded by:
Priyanka
Patel

