Sanitary constructive section with installation cad drawing details dwg file
Description
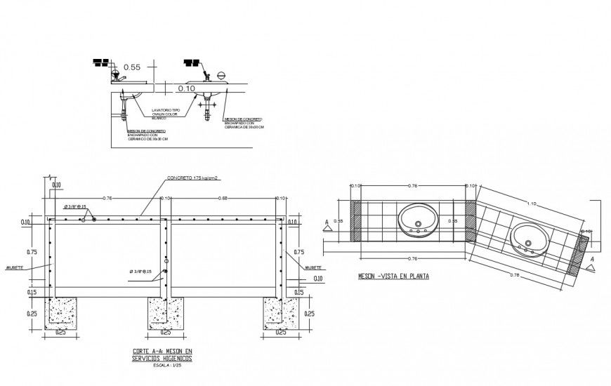
Sanitary constructive section with installation cad drawing details that includes a detailed view of Durlock type ceiling lamp Light, Hanging electric the rmotant RHEEM brand cap lts., Porcelain girl soap dish sinkta, Faucet FV monocomando, Electric thermostat hung with toilet plan, floaded elevation of toilet, toilet sections and elevations, doors and ventilations, plumbing details, evc with flush tank, ewc with flush tank, urinals with sensor, wash basin, fd- floor drain, bib cock, health faucet, angle stop cock, piller cock, paper holder, soap dispenser toshi, granite counter, mirror frame and much more of sanitary details.
File Type:
DWG
File Size:
380 KB
Category::
Interior Design
Sub Category::
Bathroom Interior Design
type:
Gold

Uploaded by:
Eiz
Luna

