Electrical installation in a building 2d view CAD block layout autocad file
Description
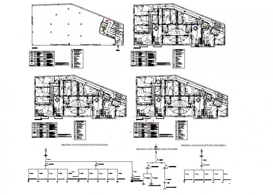
Electrical installation in a building 2d view CAD block layout autocad file, plan view detail, electrical wires detail, dimension detail, floor level detail, fuse detail, earthing wire detail, dimension detail, wall and flooring detail, specification detail, staircase detail, switch and plug detail, circuit flow diagram detail, etc.

Uploaded by:
Eiz
Luna

