House kitchen elevation, section, plan and structure details dwg file
Description
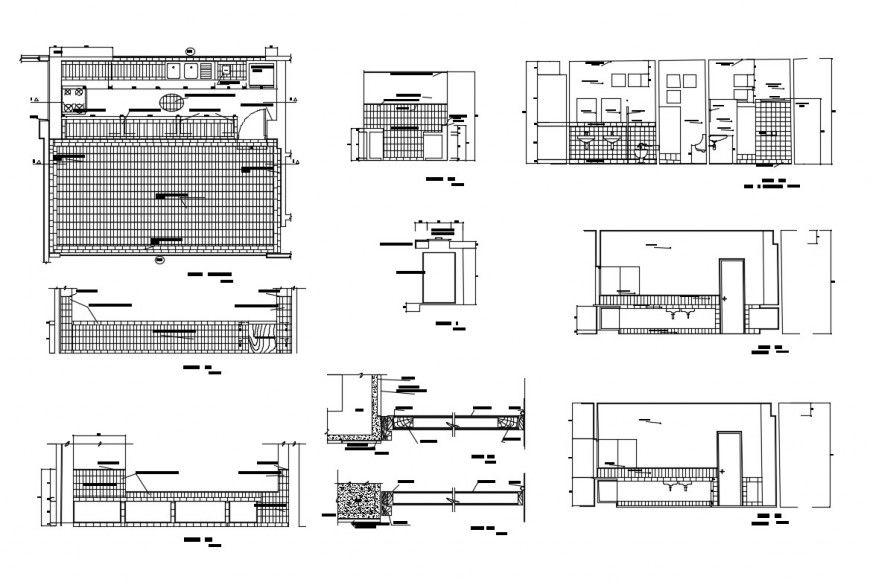
House kitchen elevation, section, plan and structure details that includes a detailed view of all sided section details of kitchen with wall design, tile design, dimensions details, furniture details, interior details, cooking area, platform area, gas stove, sink and plumbing details, electrical equipment details, chimney and exhaustion, ceiling details, constructive structure details and much more of kitchen section and project details.

Uploaded by:
Eiz
Luna
