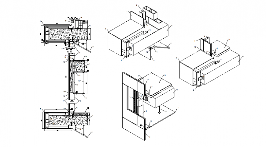
Structural section plan autocad file
Description
Structural section plan autocad file, isometric view detail, dimension detail, naming detail, concrete mortar detail, line plan detail, reinforcement plate detail, stirrups detail, bolt nut detail, thickness detail, cut out detail, not to scale detail, etc.

Uploaded by:
Eiz
Luna

