Row House Furniture Layout Plan Design of AutoCAD file
Description
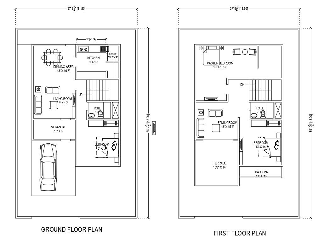
Row House Furniture Layout Plan Design of AutoCAD file.the architecture layout plan of all floor with all dimension detail.that shows living room,bedroom,dinning area and kitchen download Row House Layout Plan Design of AutoCAD file
Uploaded by:
Priyanka
Patel
