Wall foundation 2d view CAD structural block layout file in dwg format
Description
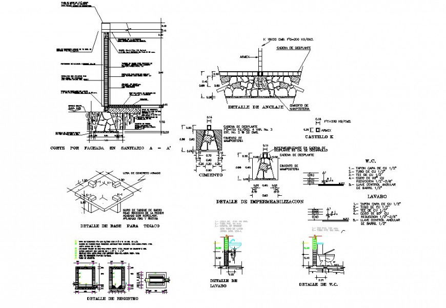
Wall foundation 2d view CAD structural block layout file in dwg format, section detail, wall structure detail, dimension detail, damp proof course (DPC) level detail, sanitary toilet and wash basin structure detail, specification detail, hatching detail, namings detail, cut out detail, stone masonry detail, etc.
File Type:
DWG
File Size:
364 KB
Category::
Construction
Sub Category::
Construction Detail Drawings
type:
Gold

Uploaded by:
Eiz
Luna

