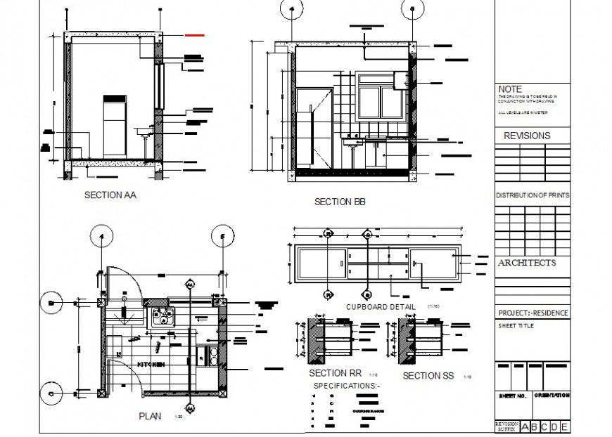
Plan and sectional detail of kitchen interior 2d view CAD block layout autocad file
Description
Plan and sectional detail of kitchen interior 2d view CAD block layout autocad file, plan view detail, door and window detail, platform detail, gas-stove detail, cabinet and shelves detail, section line detail, specification detail, dimension detail, washbasin detail, etc.
File Type:
DWG
File Size:
169 KB
Category::
Construction
Sub Category::
Kitchen And Remodeling Details
type:
Gold

Uploaded by:
Eiz
Luna
