Perspective House Elevation Design of AutoCAD FIle
Description
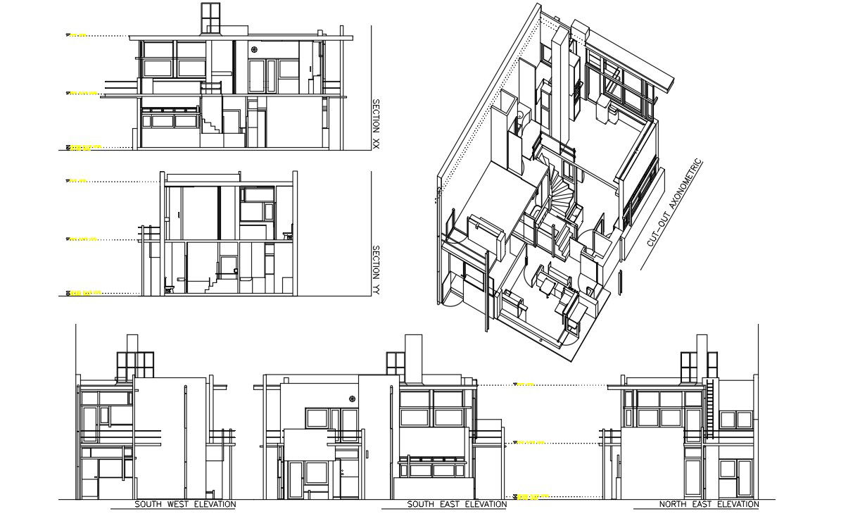
Perspective House Elevation Design of AutoCAD FIle ceiling design and furniture design of house alsoground floor unfurnished residential house entrance furniture & ceiling layout design & Perspective View. Perspective House Design DWG File, Perspective House Design Detail .
Uploaded by:
Priyanka
Patel

