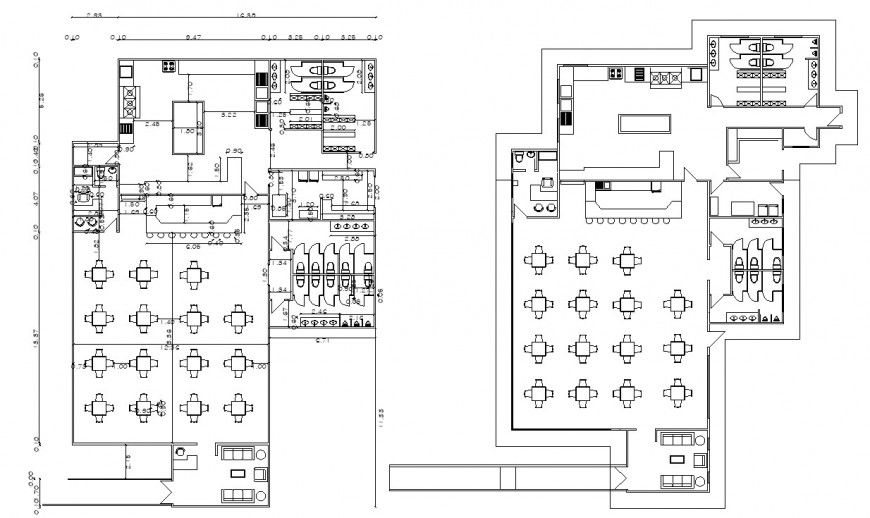
Restaurant working plan drawing in dwg file.
Description
Restaurant working plan drawing in dwg file. detail drawing of restaurant , furniture detail, plan including waiting area and reception, dining area arrangements, utility zone with toilets, bar counter, manager cabin , kitchen , storage area and etc design detail drawing.

Uploaded by:
Eiz
Luna
