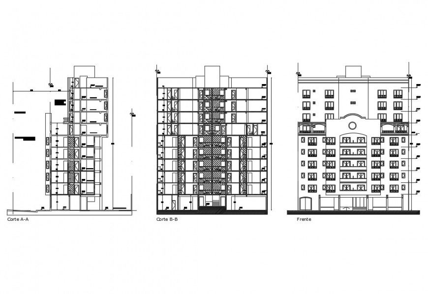
Luxuries hotel main elevation and section details with cut section cad drawing details dwg file
Description
Luxuries hotel main elevation and section details with cut section cad drawing details that includes a detailed view of flooring view, doors and windows view, staircase view, balcony view, wall design, dimensions, roof or terrace view and much more of hotel project details.

Uploaded by:
Eiz
Luna
