Pent house general plan and electrical layout plan details dwg file
Description
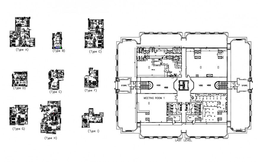
Pent house general plan and electrical layout plan details that includes a detailed view of entry gate, mini garden, car parking view, main entry house door, drawing room, living room, family hall, kitchen, dining area, indoor staircases, laundry area, balcony, bedroom, master bedroom, toilets and bathroom, indoor doors, furniture details with power layout details, lighting layout details, computation and schedule of loads, general notes and specifications, panel board details, riser diagram, convienence details, legends and electric equipment details, cable details, dimensions details and much more of electrical installation details.

Uploaded by:
Eiz
Luna

