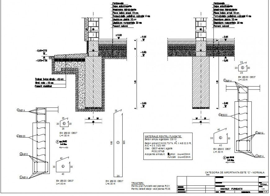
Wall structure detail 2d view sectional block layout file in autocad format
Description
Wall structure detail 2d view sectional block layout file in autocad format, concrete masonry detail, wall foundation detail, namings detail, reinforcement detail in tension and compression zone, hatching detail, floor tiles detail, brick wall masonry detail, reinforced concrete cement (RCC) structure, bar dimension detail, effective cover detail, etc.
File Type:
DWG
File Size:
1.1 MB
Category::
Construction
Sub Category::
Construction Detail Drawings
type:
Gold

Uploaded by:
Eiz
Luna

