Chandigarh college of architecture layout plan cad drawing details dwg file
Description
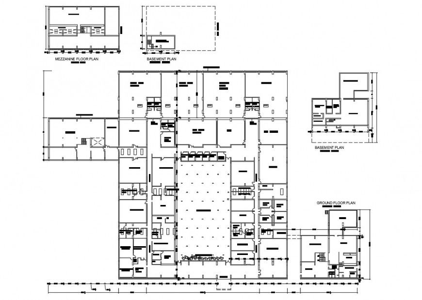
Chandigarh college of architecture layout plan cad drawing details that includes a detailed view of main entry gate, parking area for students and staff, classrooms, stream departments, library, laboratory, staff room, cultural hall, sanitary for staff, sanitary for students, canteen/cafeteria, sports ground, meeting room, cleaning department, admission office, clerk room, principal or head office and much more of college project.

Uploaded by:
Eiz
Luna

